Bezpieczniki Renault Scenic 2 (2003-2010). Gdzie znajdują się skrzynki? Jak wymienić bezpieczniki?
Renault Scenic II to druga generacja kompaktowego minivana francuskiej marki, produkowana w latach 2003-2010. Model ten zdobył uznanie kierowców dzięki przestronnemu wnętrzu, wszechstronności i przemyślanej funkcjonalności. Scenic II oferował modułową konfigurację siedzeń oraz liczne schowki, co czyniło go idealnym wyborem dla rodzin. Pod maską znajdowały się zarówno benzynowe, jak i wysokoprężne jednostki napędowe o różnej mocy. Pomimo solidnej konstrukcji, jak w każdym pojeździe, mogą wystąpić awarie układu elektrycznego – najczęściej spowodowane przepaleniem bezpieczników. Znajomość lokalizacji skrzynek oraz umiejętność samodzielnej wymiany tych elementów pozwoli zaoszczędzić czas i pieniądze na wizycie w warsztacie.

W tym artykule odpowiemy zatem na takie kluczowe pytania, jak: gdzie znajdują się skrzynki z bezpiecznikami w Renault Scenic 2 (2003-2010)?, Jak wygląda schemat poszczególnych skrzynek?, Jak sprawdzić i wymienić uszkodzony bezpiecznik?
Skrzynki z bezpiecznikami w Renault Scenic 2 (2003-2010). Gdzie szukać? Jak czytać?
W modelu Renault Scenic II bezpieczniki zlokalizowane są w kilku miejscach – zarówno w przedziale pasażerskim, jak i w komorze silnika. Konstrukcja ta jest typowa dla większości samochodów osobowych i zapewnia łatwy dostęp do najważniejszych zabezpieczeń układu elektrycznego.
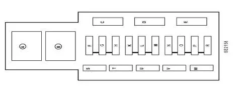
Kabina pasażerska – główna skrzynka bezpieczników
Pierwsza i najważniejsza skrzynka z bezpiecznikami znajduje się w przedziale pasażerskim, w desce rozdzielczej po lewej stronie. Aby uzyskać do niej dostęp, należy otworzyć drzwi od strony kierowcy i zlokalizować panel boczny umieszczony tuż obok drzwi. Po ostrożnym zdjęciu osłony ochronnej ukaże się skrzynka z bezpiecznikami. Dla ułatwienia identyfikacji poszczególnych elementów, schemat bezpieczników zazwyczaj znajduje się na wewnętrznej stronie pokrywy.
Zabezpieczone obwody
- A-40A Przekaźnik szyby elektrycznej lub przekaźnik lamp ksenonowych
- B-40A Przekaźnik światła hamowania
| Oznaczenie | Amperaż | Zabezpieczony obwód |
| C | 40A | Dmuchawa wewnętrzna |
| D | 40A | Impulsowe szyby tylnych drzwi lub przekaźniki szyb elektrycznych (pojazdy z kierownicą po lewej stronie) |
| E | 20A | Elektryczny szyberdach |
| F | 10A | ABS i ESP ECU – Czujnik przyspieszenia kątowego i bocznego |
| G | 15A | System audio; Przekaźnik pompy spryskiwacza reflektorów; Zapalniczka pierwszego rzędu siedzeń; Elementy ogrzewania siedzeń; Pompa spryskiwacza szyby przedniej; Przekaźnik nagrzewnicy diesla; Panel sterowania klimatyzacji; ECU klimatyzacji; Elektrochromowe lusterko wsteczne; Alarm antywłamaniowy; Centralna jednostka komunikacyjna |
| H | 15A | Światło stopu |
| K | 5A | Przekaźnik do zasilania lampy ksenonowej ECU; Zasilacz do siłownika lampy ksenonowej; Lampa oświetlenia schowka |
| L | 25A | Elektryczne drzwi kierowcy szyby |
| M | 25A | Regulator okna drzwi pasażera; Przekaźnik podnośnika szyb (pojazdy RHD) |
| N | 20A | Bezpiecznik do odłączania odbiorników energii elektrycznej: system audio, elektryczne zewnętrzne lusterka wsteczne, alarm antywłamaniowy, tablica rozdzielcza, konsola środkowa |
| O | 15A | Klakson; Złącze diagnostyczne; Przekaźnik pompy spryskiwaczy reflektorów |
| P | 15A | Silnik wycieraczki tylnej szyby |
| R | 20A | UCH; ECU klimatyzacji; Przekaźnik światła hamowania (B) |
| T | 15A | Bezpiecznik zapalniczki |
| S | 3A | Wentylator elektryczny i czujnik temperatury wnętrza; Lusterko wsteczne z powłoką elektrochromową; Czujniki deszczu i światła |
| U | 20A | Centralny zamek lub system zamykania klamek wewnętrznych |
| V | - | Nieużywany |
| B | 7,5A | Elementy grzejne do zewnętrznych lusterek wstecznych |
Kabina pasażerska – dodatkowa skrzynka pod siedzeniem
W kabinie pasażerskiej zlokalizowana jest również druga, mniejsza skrzynka z bezpiecznikami. Znajduje się ona pod lewym przednim siedzeniem pasażera. Ta skrzynka zawiera siedem pozycji zabezpieczających dodatkowe funkcje pojazdu.

| Oznaczenie | Amperaż | Zabezpieczony obwód |
| 1 | 25A | Bezpiecznik automatyczny hamulec postojowy |
| 2 | 20A | Bezpiecznik obwodu ogrzewania, fotela kierowcy i pasażera |
| 3 | 10A | Nieużywany |
| 4 | 10A | Bezpiecznik gniazda zasilania wyposażenia dodatkowego na konsoli, napędu elektrycznego do blokowania konsoli i lampki oświetlenia centralnego schowka |
| 5 | 10A | Bezpiecznik gniazda zasilania wyposażenia dodatkowego drugiego rzędu siedzeń |
| 6 | 10A | Bezpiecznik do gniazda zasilania akcesoriów, pierwszy rząd siedzeń |
| A | 50A | Przekaźnik dla odbiorników energii elektrycznej, drugi przekaźnik mocy dla powyższych bezpieczników 2, 4, 5 i 6 |
Przekaźniki w kabinie
Oprócz wymienionych skrzynek z bezpiecznikami, w Renault Scenic II znajdują się również oddzielne przekaźniki:
- Po prawej stronie modułu zespolonego w kabinie – 2 pomocnicze przekaźniki ogrzewania;
- Na belce poprzecznej po lewej stronie deski rozdzielczej – przekaźniki konsumenckie na panelu bezpieczników.
Komora silnika – skrzynka 1 (pod baterią)
W komorze silnika Renault Scenic II znajdują się dwie skrzynki z bezpiecznikami oraz trzy wkładki bezpiecznikowe na dodatnim zacisku akumulatora. Pierwsza skrzynka zlokalizowana jest pod baterią.
| Oznaczenie | Amperaż | Zabezpieczony obwód |
| 3 | 25A | Pociągnij przekaźnik rozrusznika |
| 4 | 10A | Sprzęgło do włączania sprężarki klimatyzacji |
| 5a | 15A | Elektryczna blokada kolumny kierownicy |
| 5C | 10A | Lampy cofania |
| 5D | 5A | Układ wtrysku ECU i elektryczna blokada kolumny kierownicy („+" po zapłonie) |
| 5e | 5A | ECU poduszki powietrznej i elektryczne wspomaganie kierownicy („+" po zapłonie) |
| 5F | 7,5A | „+" po zapłonie (w kabinie pasażerskiej): wskaźnik położenia dźwigni zmiany biegów, regulacja prędkości i ogranicznik prędkości, skrzynka bezpieczników i przekaźników w kabinie pasażerskiej, przekaźnik nagrzewnicy dodatkowej, złącze diagnostyczne, lusterko wsteczne, deszcz i promieniowanie słoneczne czujnik (w zależności od modyfikacji, ECU, systemu audio) |
| 5H | 5A | Automatyczna skrzynia biegów |
| 5G | 10A | Nie używany (lub „+" po zapłonie w układzie zasilania skroplonym gazem, jeśli występuje) |
| 6 | 30A | Podgrzewana tylna szyba |
| 7A | 7,5A | Światła po prawej stronie; Przełącznik kontroli parkowania; Przełącznik stabilizacji trajektorii; Wskaźnik położenia dźwigni zmiany biegów; Pokrętło hamulca postojowego |
| B7 | 7,5A | Światła po lewej stronie; Zapalniczka; Przełączniki centralnego zamka i świateł awaryjnych; Przełącznik sterowania zasięgiem reflektorów; Panel sterowania klimatyzacją; Przełącznik podnośnika szyb w drzwiach pasażera; Przełącznik podnośnika szyb w tylnych drzwiach; Sterownik ECU systemu nawigacji; Elementy ogrzewania fotela kierowcy i pasażera |
| 8A | 10A | Prawy reflektor (światło drogowe) |
| B8 | 10A | Reflektor lewy (światło drogowe) |
| 8C | 10A | Światła mijania (prawy reflektor); Sterowanie zasięgiem reflektorów; Prawy siłownik sterowania zasięgiem reflektorów; ECU lampy ksenonowej |
| 8D | 10A | Lewy reflektor (światło mijania); Siłownik regulacji zasięgu lewego reflektora |
| 9 | 25A | Silnik wycieraczek szyby przedniej |
| 10 | 20A | Światła przeciwmgielne |
| 11 | 40A | Wentylator elektryczny układu chłodzenia silnika (niska prędkość) |
| 13 | 25A | ABS ECU i ESP |
| 15 | 20A | + akumulator na automatycznej skrzyni biegów (lub układ zasilania LPG, jeśli występuje) |
| 16 | 10A | Nieużywany |
Komora silnika – skrzynka 2 (obok baterii)
Druga skrzynka w komorze silnika znajduje się po prawej stronie akumulatora i zawiera bezpieczniki o większych wartościach amperażu, zabezpieczające główne systemy pojazdu.
| Oznaczenie | Amperaż | Zabezpieczony obwód |
| 1 | 70A | Przekaźnik dodatkowego ogrzewania 2 |
| 2 | 60A | Blok montażowy bezpieczników i przekaźników w przedziale pasażerskim |
| 3 | 40A | Przekaźnik dodatkowego ogrzewania 1 |
| 4 | 70A | Elektryczne wspomaganie kierownicy |
| 5 | 50A | Jednostka sterująca ABS |
| 6 | 70A | Blok montażowy bezpieczników i przekaźników w przedziale pasażerskim |
| 7 | 20A | Przekaźnik ogrzewania filtra oleju napędowego |
| 8 | 70A | Jednostka sterująca podgrzewania wstępnego |
| 9 | - | Nieużywany |
Wkładki bezpiecznikowe na zacisku akumulatora
Bezpośrednio na dodatnim zacisku akumulatora znajdują się trzy wkładki bezpiecznikowe zabezpieczające podstawowe funkcje elektryczne pojazdu.
- 30A – Elektroniczna jednostka sterująca w kabinie;
- 350 A – dla samochodu z silnikiem benzynowym, 400 A – dla samochodu z silnikiem Diesla – Skrzynka rozdzielcza komory silnika;
- 30A – Jednostka przełączająca komory silnika.
Jak sprawdzić i wymienić bezpieczniki w Renault Scenic 2 (2003-2010)?
Gdy już znamy lokalizację poszczególnych skrzynek oraz potrafimy odczytać schematy bezpieczników, warto zapoznać się z prawidłową procedurą sprawdzania i wymiany uszkodzonych elementów. Proces ten jest prosty i nie wymaga specjalistycznych narzędzi.
Krok po kroku:
- Zlokalizuj odpowiednią skrzynkę z bezpiecznikami zgodnie z powyższymi wskazówkami.
- Znajdź właściwy bezpiecznik według tabeli i schematu – sprawdź, za jaką funkcję odpowiada.
- Ostrożnie wyjmij bezpiecznik przy pomocy plastikowych szczypiec znajdujących się w skrzynce.
- Sprawdź stan bezpiecznika – jeśli metalowy element wewnątrz (wstążka) jest przerwany lub przepalony, wymaga on wymiany.
- Przygotuj nowy bezpiecznik o identycznym amperażu – używanie bezpiecznika o innej wartości może spowodować uszkodzenie układu elektrycznego lub pożar!
- Włóż nowy bezpiecznik dokładnie w miejsce starego, upewniając się, że jest prawidłowo osadzony.
- Sprawdź działanie naprawionego komponentu – włącz odpowiedni system (np. światła, radio, wycieraczki).
- Zamknij skrzynkę bezpieczników i upewnij się, że osłona jest właściwie zamocowana.
- Jeśli problem ustąpił, możesz kontynuować jazdę.
- W przypadku powtarzającego się przepalania tego samego bezpiecznika skontaktuj się z mechanikiem – może to wskazywać na poważniejszą usterkę instalacji elektrycznej.
Bezpieczniki do Renault Scenic 2 – znajdziesz je w iParts!
Szukasz wysokiej jakości bezpieczników do swojego Renault Scenic 2? W sklepie iParts znajdziesz szeroki wybór oryginalnych i zamiennych bezpieczników samochodowych dostosowanych do różnych modeli pojazdów. Oferujemy bezpieczniki w standardowych wartościach amperażu – od 3A do 70A – które idealnie sprawdzą się w Twoim Renault.
Sprawdź naszą pełną ofertę części i akcesoriów do Renault Scenic oraz bezpieczników elektrycznych w kategorii Akcesoria Elektryczne. Zadbaj o bezpieczeństwo swojego pojazdu i kup sprawdzone części w iParts!














